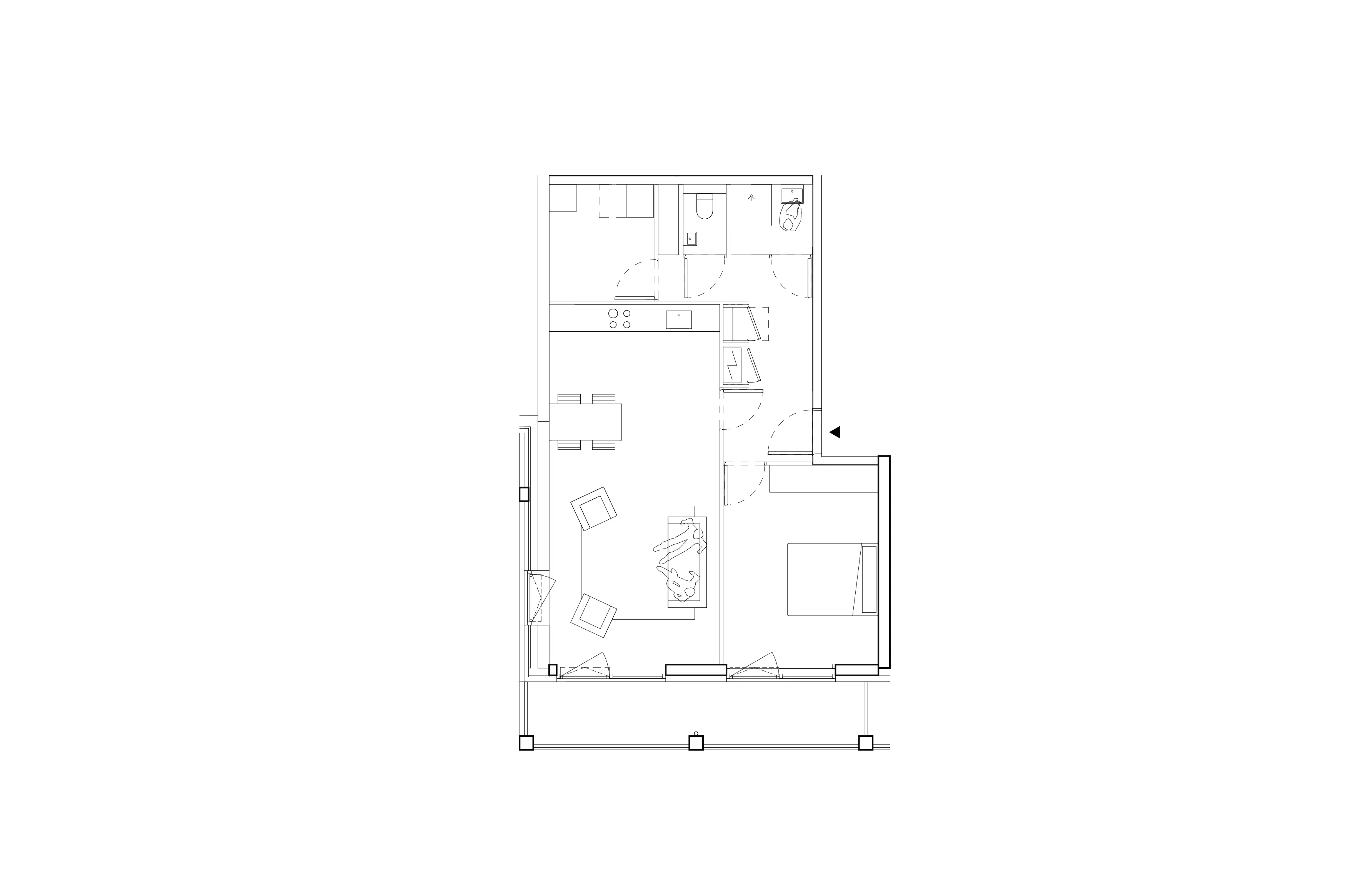
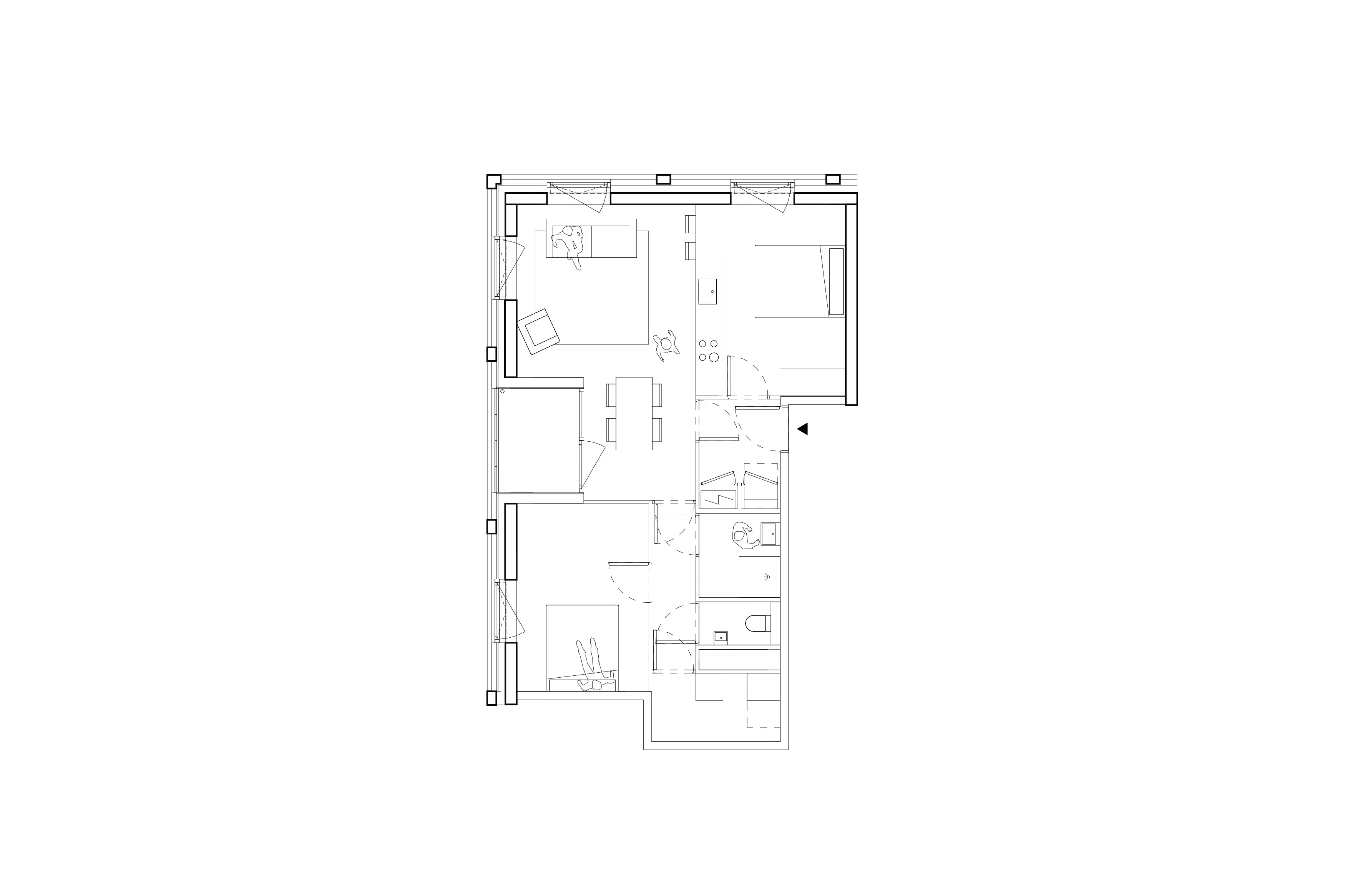
As part of the revitalisation of Neighbourhood E in the Bijlmer district in Amsterdam South-East, Space&Matter designs a residential building that reacts to the initial design ideals for the Bijlmer in 1966. A clear grid structure organizes the layout and circulation, creating a spatial framework. Within the grid, a network of in-between spaces — semi-public corridors, gardens, and roof terraces — acts as ground for encounters and informal social interaction. These transitional zones blur the boundaries between private and communal, emphasizing collectivity and a shared sense of place. The grid not only structures program but also supports layered planting and vertical gardens, encouraging greenery and biodiversity to flourish over time.
Year
2025
Size
10.375
Programme
Residential
Location
Amsterdam, Netherlands
Client
Wonam
Collaborators
Structure: Pieters Bouwtechniek
Installations: Ingenieursbureau Linssen
Contractor: KBM Groep
Fire Safety: LBP Sight
Landscape: B+B urbanism and landscape architecture











