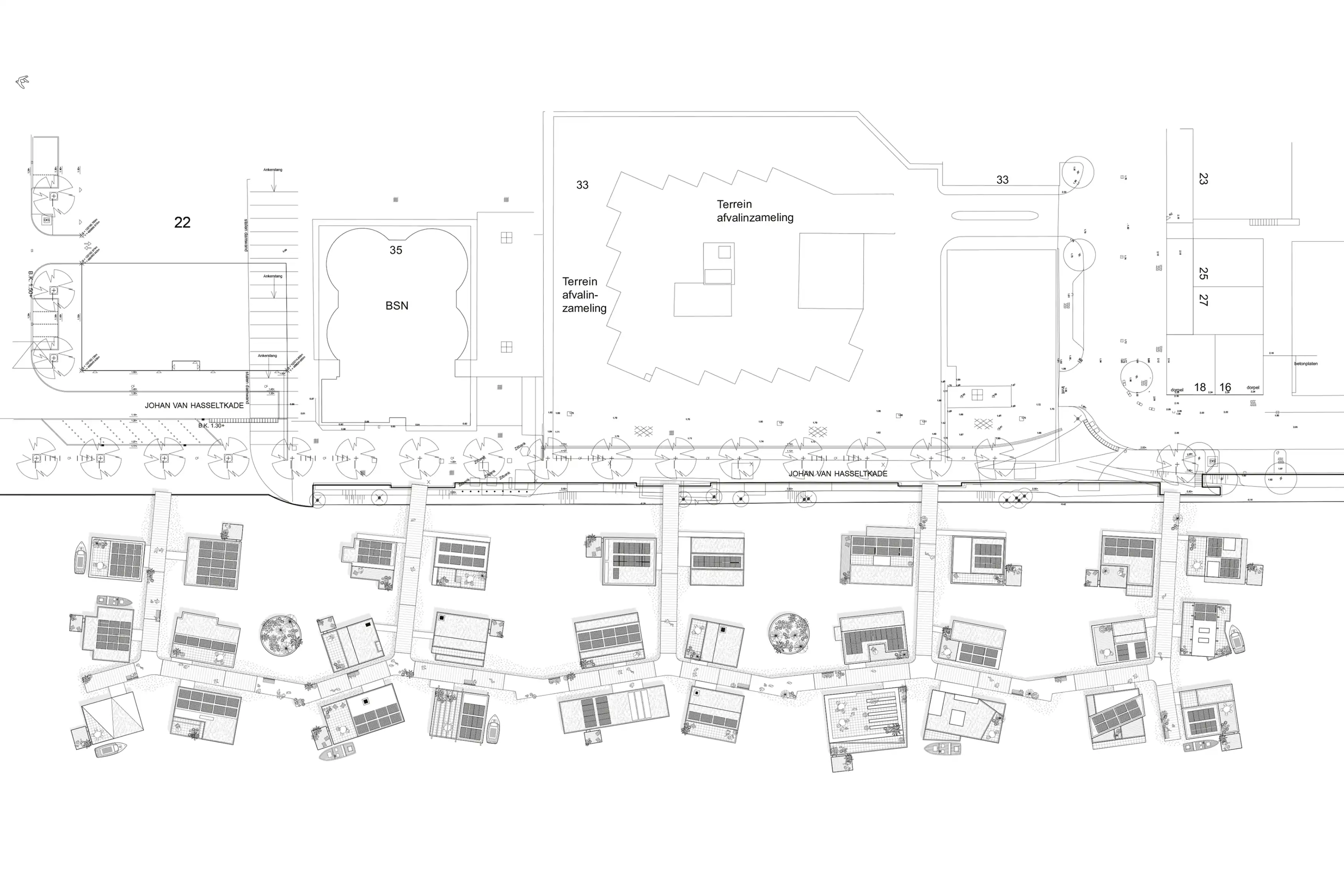
Schoonschip is a pioneering floating neighborhood developed by a group of enthusiasts who envisioned a sustainable, close-knit community on the water. Initiated in 2010 by Marjan de Blok, the project took over a decade to complete, with Space&Matter assisting in its urban planning. Officially finished in 2021, the neighborhood comprises 30 water plots with 46 unique homes, each designed by its residents in collaboration with architects of their choice. The smart jetty, connecting all homes, fosters both technical infrastructure and community interaction, ensuring unity despite architectural diversity.
Year
2021
Size
5.000
Programme
Housing on water
Location
Amsterdam
Client
Building initiative Schoonschip
Collaborators
Landscape architect: Bartels Vedder
Gemeente Amsterdam
Smart Energy System: Grid-Friends
Structural Engineering: LBP Sight
Sustainability: Metabolic
Project Management: Esther Roos / BVF Project Management
SBR-Curnet
Platformtechnology: Spectral
Photography and film: Jan Willem Sieburgh, Isabel Nabuurs, Alan Jensen, Hustle Creatives
UtilitiesTree Delft
XA4
Waterloft
Water Waternet










