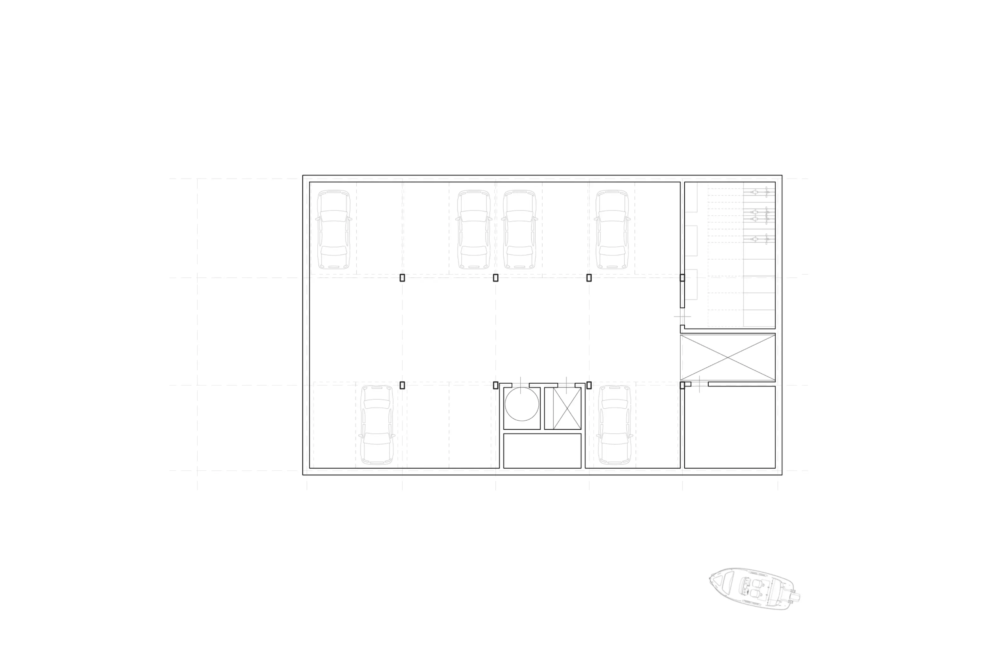
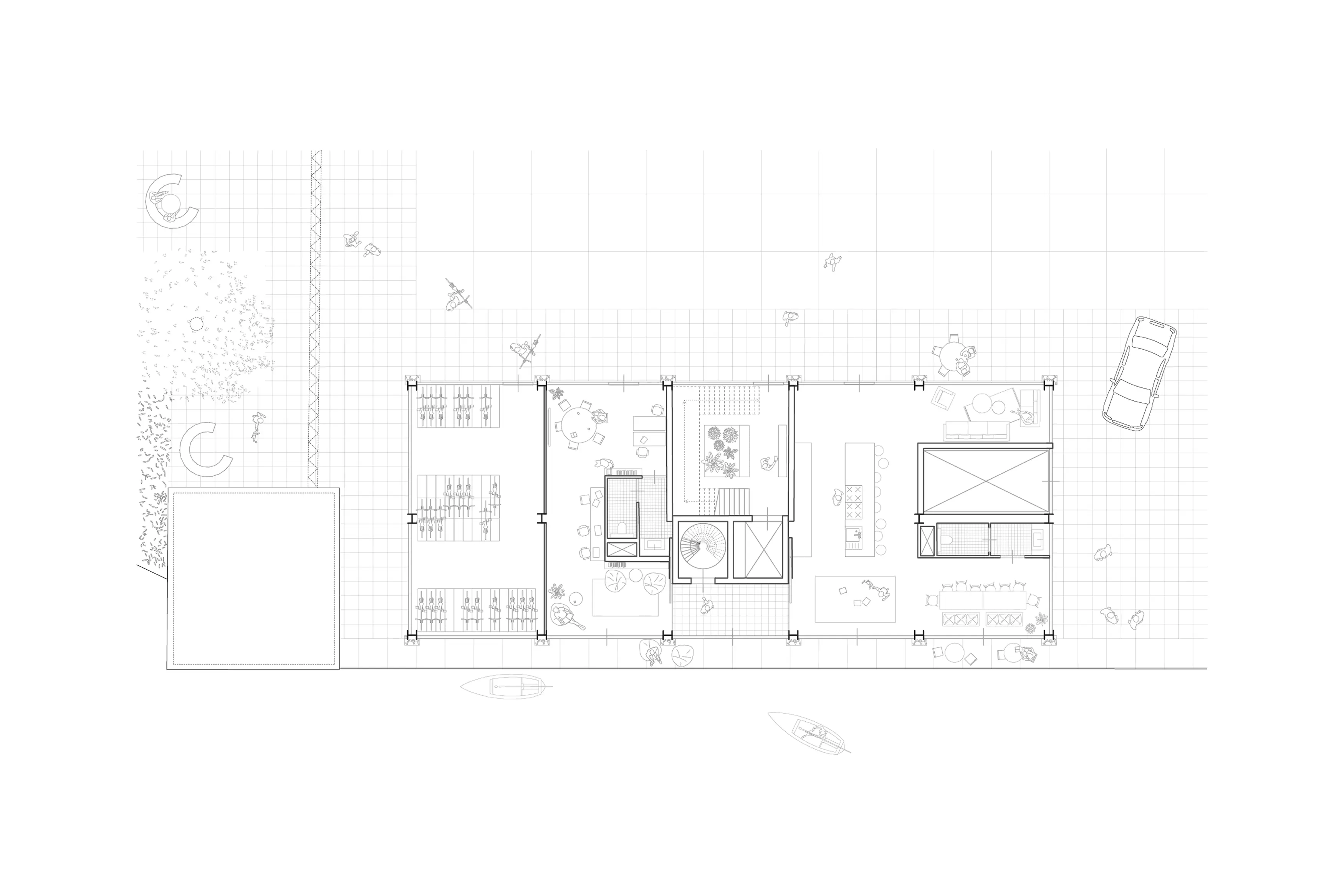
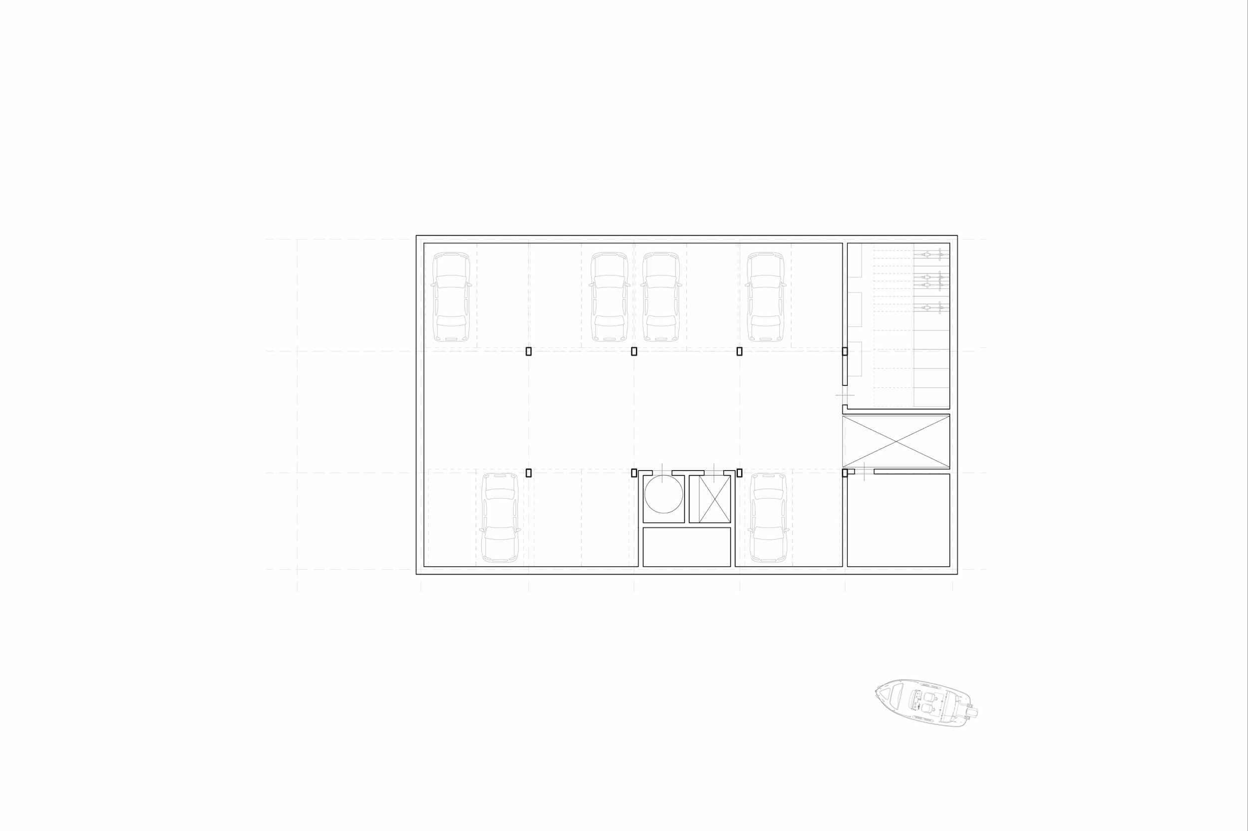
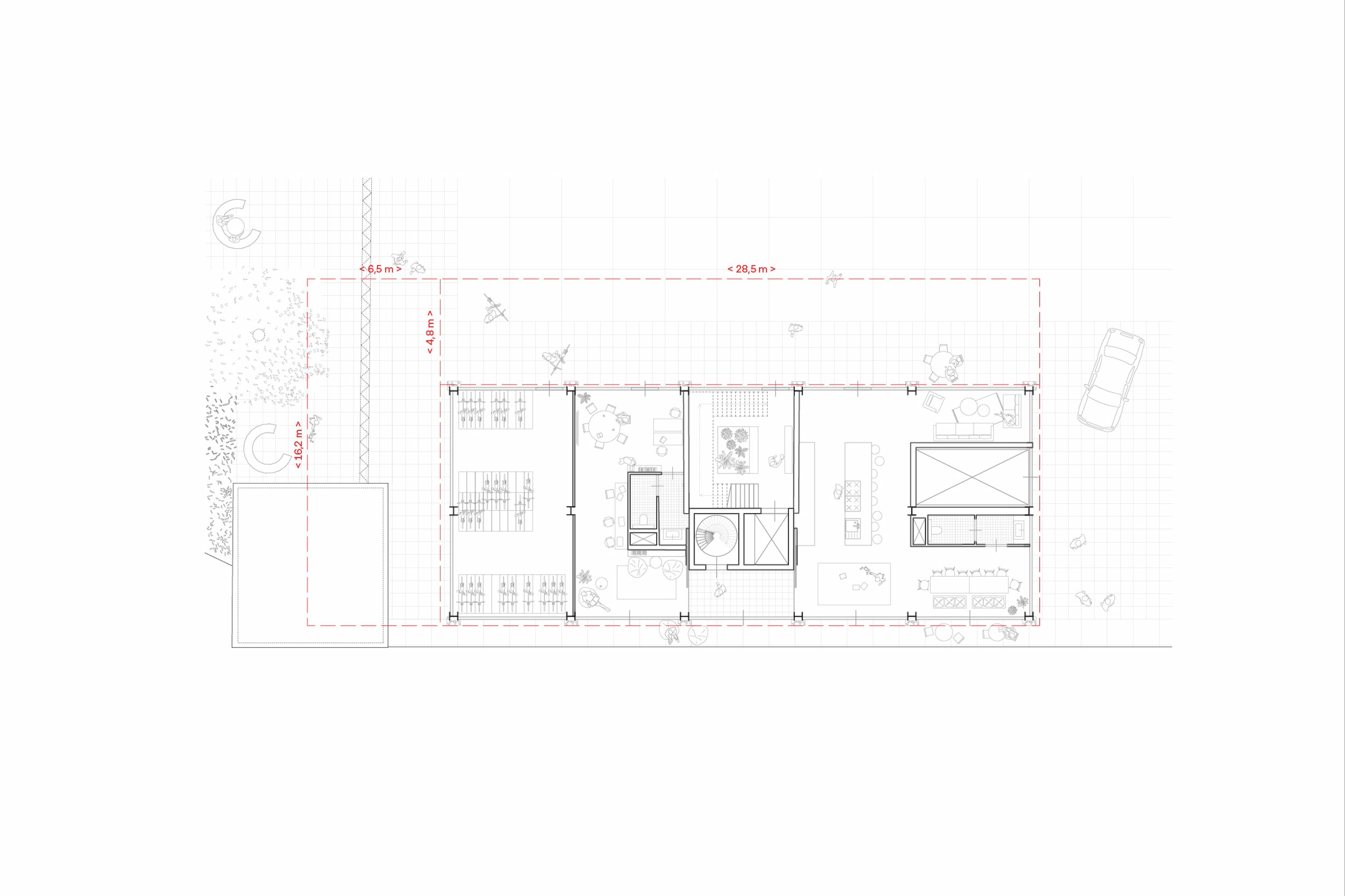
SILO stands out for its holistic circular design, using 60% biobased materials like CLT and repurposed steel. The building is adaptable, easily reconfigured to meet changing housing needs, and promotes social interaction with community spaces. Local sourcing and partnerships further reduce its ecological footprint. SILO aims to set a new standard for sustainable, flexible architecture that remains relevant for future generations. The project aspires to adaptive architecture: a building that can grow alongside its residents and the wider community. This flexibility makes SILO sustainable not only in its materials but also in its functionality, ensuring the building remains relevant for generations to come.
Year
2023
Size
3300
Programme
Residential, Dely
Location
Deventer, Netherlands
Client
Heutink Groep
Collaborators
Structure: BUCC
Building physics, sustainibility and fire safety: DGMR
Installations: HultFlier
Renders: Drip Visual















