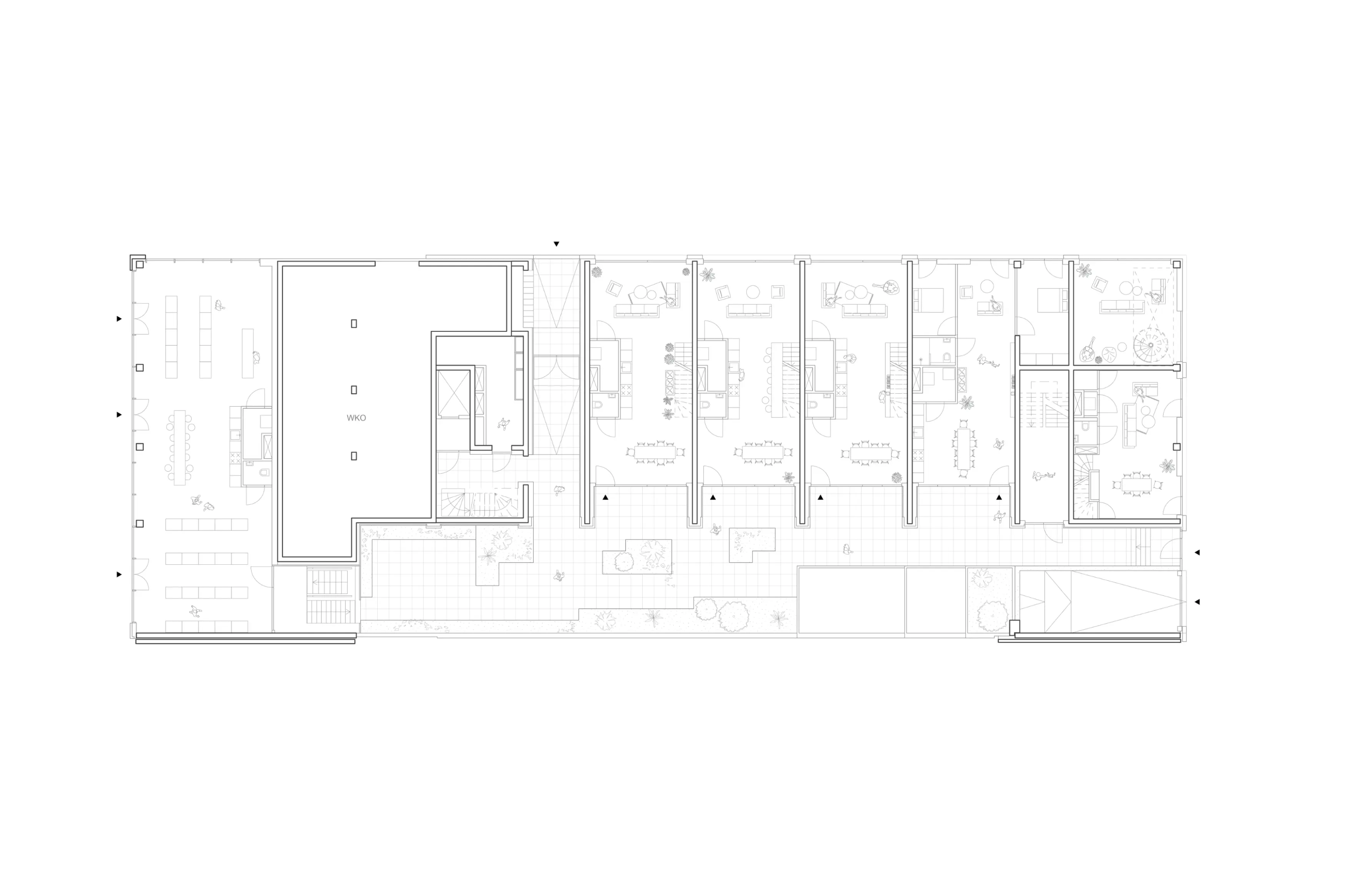
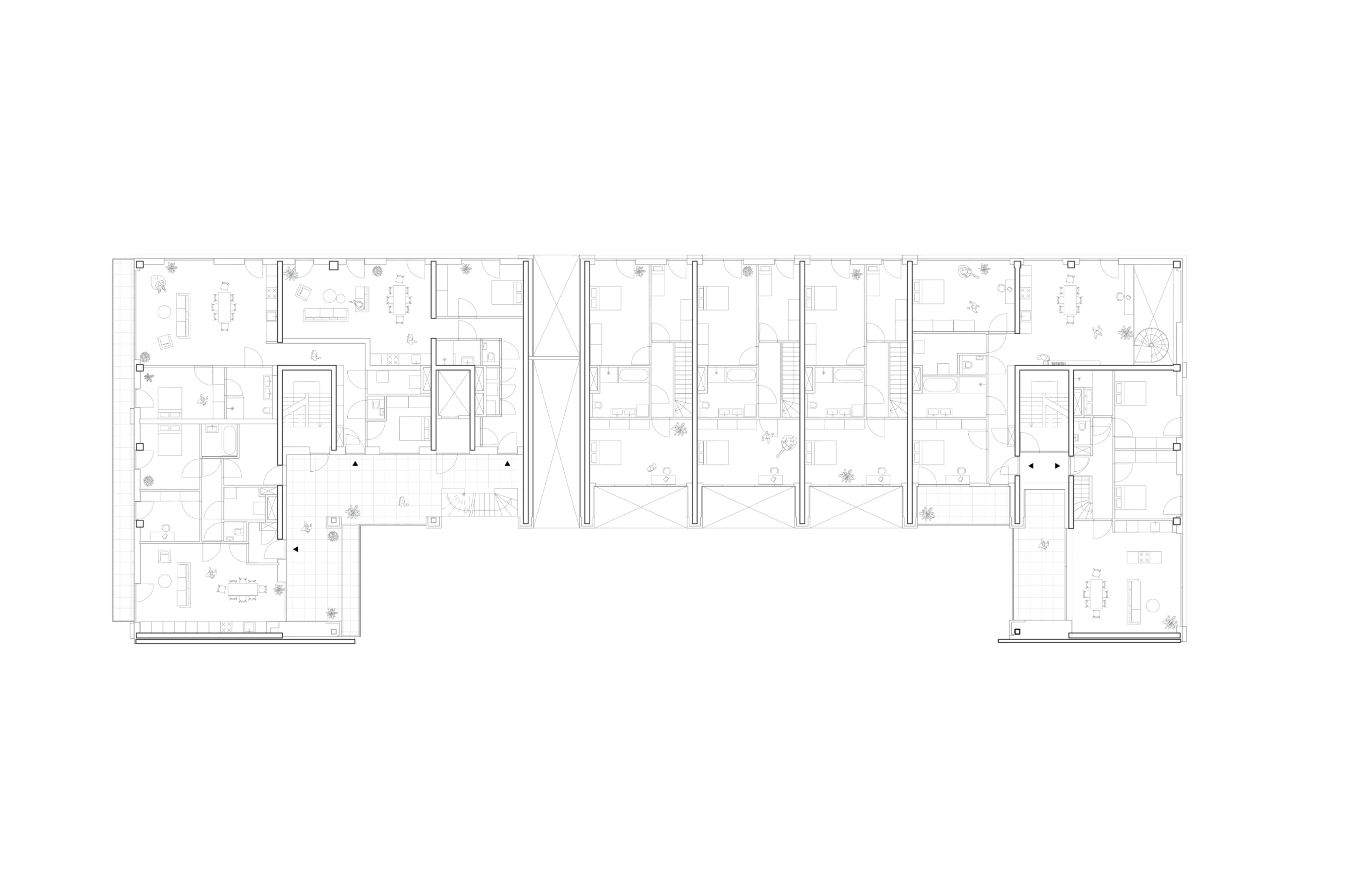
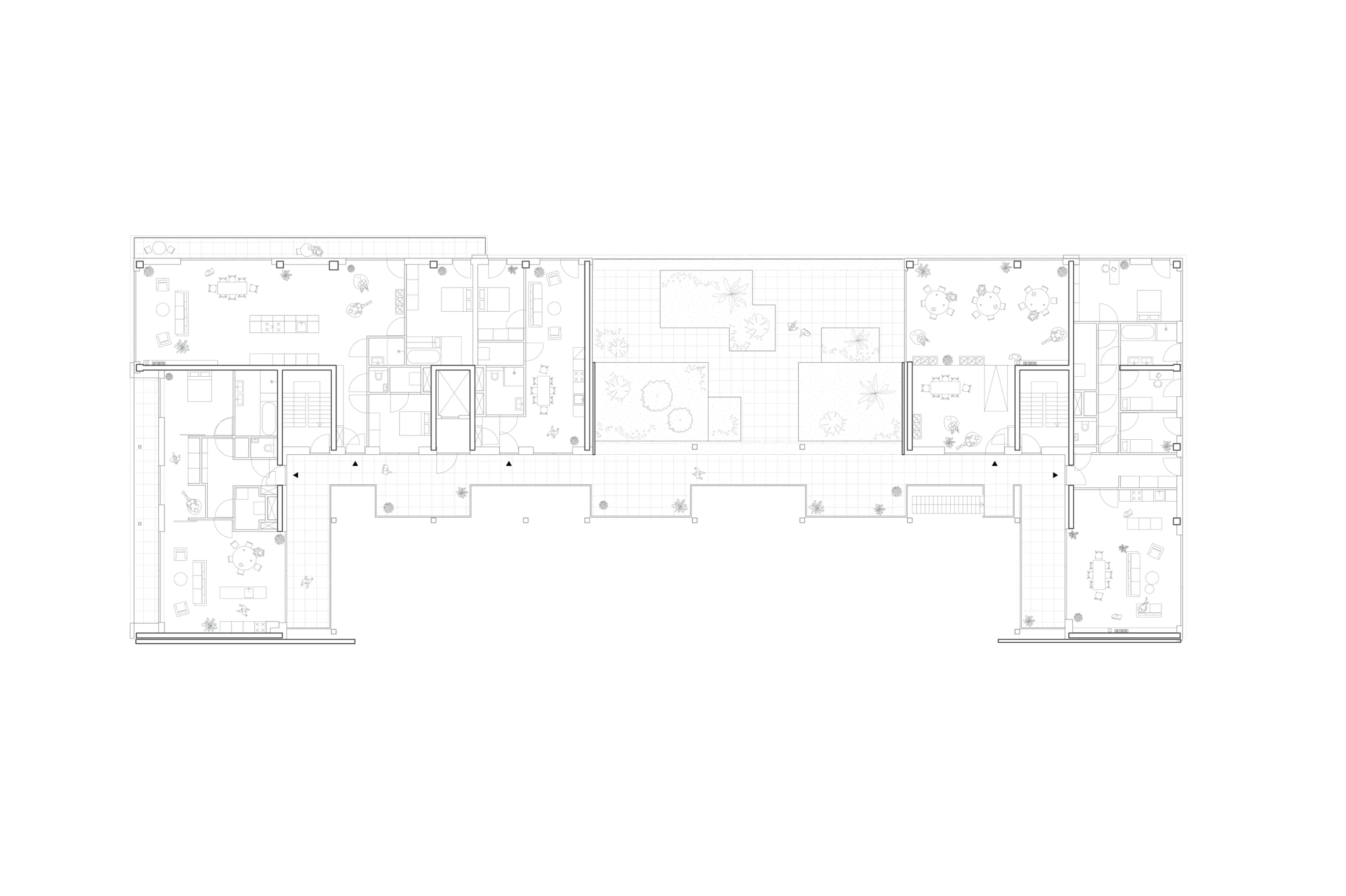
Wij_land is a pioneering self-build collective united by the desire to live more sustainably in a close-knit community of diverse residents. Initiators Mireille and Daniël have gone above and beyond to turn their vision into a reality. They sought the expertise of Space&Matter and Common City for the design and process guidance, aiming to bring together a group of self-proclaimed ‘pragmatic idealists’ and guide them in realising their dream homes.
Year
2022
Size
2.600
Programme
Residential (self-built)
Location
Amsterdam, Netherlands
Client
Coöperatie Wijland
Collaborators
Buildinggroup: Coöperatie Wijland
Procesmanagemet: Common City Development
Contractor: Van Bekkum
Breed ID
DGMR
Photography Marcel van den Burg, Daniël Bakker












